Как да сменя една лампичка на таблото?

mirott
Мнения: 2351
Регистриран на: 08 Юни 2010 09:33
Местоположение: Вършец
Благодарил/а: 53 пъти
Получена  благодарност: 50 пъти

Мнение от mirott » 13 Окт 2010 12:47

Може,но не вярвам при някои модели да няма лампа.На моята има.А тези,които са с фабрична аларма,наистина ли лампата е на копчето за аварийните-не знам.

Scott
Мнения: 2710
Регистриран на: 25 Ное 2004 18:44
Местоположение: Bristol, UK
Получена  благодарност: 1 път

Мнение от Scott » 13 Окт 2010 13:08

mirott написа:Може,но не вярвам при някои модели да няма лампа.
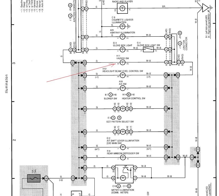
Ако се вярва на тази схема (Авенсис/Корона 1997-2002) трябва да има лампа. Освен това по стандарт триъгълничето трябва да е осветено (мерки за безопасност).
heller написа:Колега, открий разликата между този бутон и другите два...
Ако имаш предвид жълтите правоъгълни светлинки отстрани на картинката, те са за индикация че бутона е натиснат и съответния агрегат под напрежение. Нямат нищо общо с осветяването на картинката при включване на габаритите.
Прикачени файлове
Illumination.jpg
Illumination.jpg (91.86 KiB) Преглеждано 1484 пъти

mirott
Мнения: 2351
Регистриран на: 08 Юни 2010 09:33
Местоположение: Вършец
Благодарил/а: 53 пъти
Получена  благодарност: 50 пъти

Мнение от mirott » 13 Окт 2010 13:44

Да,точно така.Другите бутони имат по 2 лампи-1 за осветяване,1 за индикация включено.

Аватар
Petar
Мнения: 2029
Регистриран на: 16 Юни 2007 21:20
Местоположение: Велико Търново

Мнение от Petar » 13 Окт 2010 13:52

:thumbsup:

mirott
Мнения: 2351
Регистриран на: 08 Юни 2010 09:33
Местоположение: Вършец
Благодарил/а: 53 пъти
Получена  благодарност: 50 пъти

Мнение от mirott » 13 Окт 2010 14:10


The_Teacher
Мнения: 83
Регистриран на: 20 Мар 2008 22:47

Мнение от The_Teacher » 13 Окт 2010 23:23

Копчето със сигурност би трябвало да ти свети. При мен изгоря и се наложи да я сменя, което не е трудно. Проблем се оказа намирането на лампичката.....

Публикувай отговор

Кой е на линия

Потребители разглеждащи този форум: 0 регистрирани и 4 госта